17坪の美容室(セット面3、シャンプー2)
主な特長
角地に長方形の敷地
店舗のみの設計で、車の出入り、外観、お客様が施術中くつろげるポジション等様々な事を考えてお店運営に必要なプランニングを行いこの提案になりました。
-
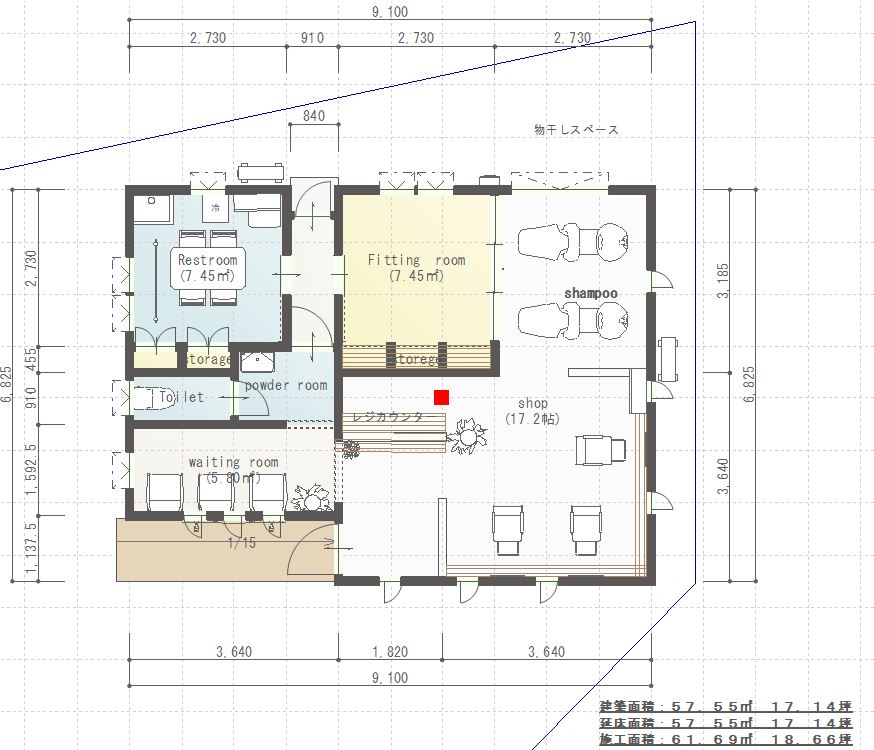
平面図
着付けが出来る4、5畳のスペース付 -
外観1
車4台駐車 -
外観2
メイン通りからの目線をカット -
鳥瞰図

角地に長方形の敷地
店舗のみの設計で、車の出入り、外観、お客様が施術中くつろげるポジション等様々な事を考えてお店運営に必要なプランニングを行いこの提案になりました。



